双园弧人字齿轮减速器的性能特点
1、 齿轮采用GB3913-85双园弧园柱齿轮齿廓。
2、 轴齿轮采用体质合金钢(40Gr)制造,大齿轮采用ZG45,或优质合金钢(40Cr)。
3、 齿轮精度规定为8-8-7。
4、 双园弧人字齿轮减速器与同类型渐开线人字齿轮减速器相比,其承载能力和接触强度要高,大大延长了使用寿命。
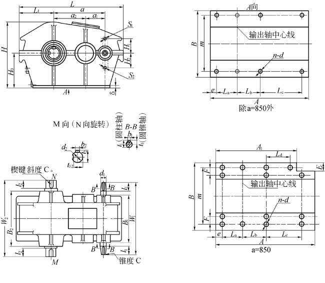
5、 除已标明旋转方向的减速器外,减速器可双向传动,且传动可靠,噪声低,高速轴输入转速一般1500r/min。
6、 减速器采用极压齿轮油润滑,适应环境温度-40℃~+45℃,冬季选用150#极压齿轮油,夏季选用250#极压齿轮油润滑。
7、 减速器输入轴和输出轴部采用迷宫式密封或迥转骨架油封,密封性能可靠。

|
外形及安装尺寸表
|
机座号
|
501
|
502
|
600
|
651
|
652
|
653
|
654
|
655
|
751
|
752
|
753
|
754
|
755
|
851
|
852
|
853
|
854
|
1001
|
1002
|
|
a
|
500
|
500
|
600
|
650
|
650
|
650
|
650
|
750
|
750
|
750
|
750
|
750
|
750
|
850
|
850
|
850
|
850
|
1000
|
1000
|
|
转矩
KN·m
|
9
|
-
|
13
|
6.5
|
13
|
13
|
13
|
18
|
26
|
26
|
26
|
26
|
26
|
37
|
48
|
37
|
37
|
53
|
73
|
|
总速比
|
31.73
|
31.73
|
33.58
|
27.74
|
30.53
|
30.53
|
30.53
|
31.5
|
31.71
|
31.71
|
31.71
|
31.71
|
31.71
|
28
|
28
|
28
|
31.5
|
31.89
|
31.73
|
|
a1
|
200
|
200
|
250
|
250
|
250
|
250
|
250
|
250
|
300
|
300
|
300
|
300
|
300
|
331
|
331
|
331
|
331
|
400
|
400
|
|
a2
|
300
|
300
|
350
|
400
|
400
|
400
|
400
|
400
|
450
|
450
|
450
|
450
|
450
|
519
|
519
|
519
|
519
|
600
|
600
|
|
L
|
990
|
990
|
1200
|
1270
|
1270
|
1270
|
1270
|
1330
|
1475
|
1475
|
1475
|
1475
|
1475
|
1645
|
1645
|
1645
|
1645
|
1945
|
1950
|
|
L1
|
345
|
345
|
410
|
455
|
455
|
455
|
455
|
455
|
495
|
495
|
495
|
495
|
495
|
560
|
560
|
560
|
560
|
660
|
665
|
|
H
|
810
|
810
|
770
|
810
|
810
|
810
|
810
|
799
|
910
|
910
|
910
|
910
|
910
|
1092
|
1092
|
1092
|
1092
|
1170
|
1195
|
|
H0
|
340
|
340
|
410
|
420
|
420
|
420
|
420
|
420
|
420
|
480
|
480
|
480
|
480
|
560
|
560
|
560
|
560
|
600
|
620
|
|
B1
|
510
|
510
|
564
|
530
|
530
|
530
|
530
|
670
|
650
|
650
|
650
|
650
|
650
|
715
|
715
|
715
|
715
|
860
|
990
|
|
B2
|
650
|
650
|
758
|
790
|
790
|
790
|
790
|
950
|
900
|
900
|
900
|
900
|
900
|
1020
|
1020
|
1020
|
1020
|
1120
|
1400
|
|
W1
|
680
|
680
|
834
|
730
|
760
|
760
|
760
|
900
|
974
|
980
|
974
|
974
|
974
|
1037
|
1037
|
1037
|
1037
|
1190
|
1460
|
|
W2
|
1086
|
1086
|
1300
|
1140
|
1185
|
1225
|
1277
|
1520
|
1570
|
1510
|
1570
|
1570
|
1570
|
1664
|
1664
|
1664
|
1664
|
1782
|
2260
|
|
d1
|
ф40
|
ф40
|
ф55
|
ф45
|
ф60
|
ф60
|
ф60
|
ф65
|
ф75
|
ф75
|
ф75
|
ф75
|
ф75
|
ф80
|
ф90
|
ф90
|
ф80
|
ф90
|
ф90
|
|
b1
|
12
|
12
|
16
|
12
|
18
|
18
|
18
|
20
|
20
|
20
|
20
|
20
|
20
|
25
|
25
|
25
|
25
|
25
|
22
|
|
t1
|
43
|
43
|
33
|
23.6
|
33
|
33
|
33
|
35.5
|
43.5
|
43.5
|
43.5
|
43.5
|
41.5
|
48.3
|
52.5
|
52.5
|
48
|
48.5
|
51.5
|
|
l1
|
63
|
63
|
77
|
75
|
100
|
100
|
100
|
80
|
97
|
97
|
97
|
97
|
97
|
112
|
117
|
117
|
117
|
97
|
155
|
|
c
|
圆柱轴
|
1:20
|
1:10
|
1:10
|
1:10
|
1:10
|
1:10
|
1:20
|
1:20
|
1:20
|
1:20
|
1:20
|
1:8
|
1:8
|
1:8
|
1:8
|
2:20
|
1:20
|
|
d2
|
ф90
|
ф90
|
ф110
|
ф85
|
ф110
|
ф110
|
ф110
|
ф120
|
ф155
|
ф150
|
ф155
|
ф155
|
ф155
|
ф175
|
ф175
|
ф175
|
ф175
|
ф180
|
ф200
|
|
b2
|
25
|
25
|
28
|
24
|
28
|
28
|
28
|
32
|
40
|
40
|
40
|
40
|
40
|
45
|
45
|
45
|
45
|
45
|
45
|
|
t02
|
81
|
81
|
100
|
76
|
100
|
100
|
100
|
105
|
142
|
139
|
142
|
142
|
142
|
149.6
|
149.5
|
149.5
|
149.6
|
160
|
185
|
|
t2
|
95
|
95
|
116
|
94.4
|
116
|
116
|
116
|
130.5
|
171
|
161
|
170
|
167
|
170
|
195.6
|
194.5
|
194.5
|
189.6
|
195
|
210
|
|
l2
|
143
|
143
|
170
|
130
|
145
|
165
|
191
|
173
|
193
|
190
|
193
|
193
|
193
|
220
|
195
|
195
|
220
|
220
|
230
|
|
c0
|
1:100
|
1:100
|
1:100
|
1:100
|
平键
|
1:100
|
1:100
|
平键
|
1:100
|
1:100
|
1:100
|
1:100
|
1:100
|
1:100
|
1:100
|
1:100
|
平键
|
|
A
|
650
|
650
|
900
|
1140
|
890
|
890
|
890
|
1140
|
1140
|
1140
|
1140
|
1140
|
1140
|
1400
|
1400
|
1400
|
1400
|
1500
|
1460
|
|
B
|
425
|
425
|
580
|
550
|
530
|
530
|
530
|
730
|
720
|
720
|
720
|
720
|
760
|
900
|
900
|
900
|
880
|
920
|
940
|
|
m
|
375
|
375
|
510
|
500
|
450
|
450
|
450
|
650
|
620
|
620
|
650
|
620
|
650
|
770
|
818
|
770
|
770
|
830
|
820
|
|
La
|
130
|
130
|
200
|
340
|
185
|
185
|
185
|
250
|
250
|
250
|
250
|
250
|
250
|
440
|
430
|
440
|
440
|
420
|
400
|
|
Lb
|
130
|
130
|
200
|
200
|
205
|
205
|
205
|
230
|
250
|
250
|
250
|
250
|
250
|
344
|
319
|
344
|
344
|
420
|
400
|
|
Lc
|
300
|
300
|
400
|
500
|
390
|
390
|
390
|
480
|
500
|
500
|
500
|
500
|
500
|
350
|
480
|
350
|
350
|
510
|
500
|
|
A1
|
-
|
-
|
-
|
-
|
-
|
-
|
-
|
-
|
-
|
-
|
-
|
-
|
-
|
1135
|
940
|
1050
|
1180
|
-
|
-
|
|
E
|
-
|
-
|
-
|
-
|
-
|
-
|
-
|
-
|
-
|
-
|
-
|
-
|
-
|
90
|
90
|
90
|
90
|
-
|
-
|
|
F
|
-
|
-
|
-
|
-
|
-
|
-
|
-
|
-
|
-
|
-
|
-
|
-
|
-
|
-
|
90
|
-
|
-
|
-
|
-
|
|
Ld
|
-
|
-
|
-
|
-
|
-
|
-
|
-
|
-
|
-
|
-
|
-
|
-
|
-
|
235
|
-
|
161
|
235
|
-
|
-
|
|
e
|
45
|
45
|
50
|
50
|
55
|
55
|
55
|
90
|
70
|
70
|
70
|
70
|
70
|
55
|
65
|
55
|
55
|
75
|
80
|
|
n-d
|
6-ф22
|
6-ф22
|
6-ф26
|
6-ф24
|
6-ф32
|
6-ф32
|
6-ф32
|
6-ф33
|
6-ф33
|
6-ф33
|
6-ф33
|
6-ф33
|
8-ф33
|
8-ф33
|
11-ф33
|
8-ф33
|
8-ф33
|
8-ф32
|
8-ф39
|
|
δ
|
30
|
30
|
45
|
40
|
40
|
40
|
40
|
40
|
45
|
45
|
45
|
45
|
60
|
50
|
50
|
50
|
70
|
50
|
50
|
|
H1
|
180
|
215
|
180
|
180
|
180
|
180
|
180
|
220
|
220
|
265
|
180
|
215
|
180
|
-
|
-
|
-
|
240
|
240
|
265
|
|
H2
|
160
|
185
|
200
|
200
|
190
|
190
|
190
|
240
|
240
|
235
|
200
|
245
|
200
|
-
|
-
|
-
|
270
|
270
|
285
|
|
S1
|
M30
|
M36
|
M36
|
ф25
|
M30
|
M30
|
M30
|
M36
|
M36
|
M36
|
M36
|
M36
|
M36
|
-
|
-
|
-
|
M36
|
M36
|
M36
|
|
S2
|
M20
|
M20
|
M24
|
M20
|
M20
|
M20
|
M20
|
M24
|
M24
|
M20
|
M27
|
M24
|
M24
|
-
|
-
|
-
|
M24
|
M24
|
M24
|
|
重量Kg
|
675
|
695
|
1127
|
955
|
977
|
975
|
997
|
2112
|
1931
|
1791
|
1791
|
2100
|
1896
|
2600
|
2740
|
2740
|
2940
|
3611
|
4886
|
|
|
用途适用条件及特点
抽油机专用减速器,作为石油开采设计之一抽油机的减速装置,它采用了变圆弧齿形圆柱齿轮,其具有承载能力大、使用寿命长、工作平稳、噪音小、密封性能好、安全可靠、安装使用方便等特点,适用于各种野外条件下的连续作业。
使用及维护
1.减速器箱体油池内注入润滑油至两油位螺孔之间,注油后空载运转,在确认运转平稳后,主可投入负荷运动。
2.润滑油牌号:夏季一般采用150#极压工业齿输油,冬季用120#极压工业齿输油,在极压输油短缺的情况下,夏季可用50#,冬季用40#机油代替。
3.新启用的减速器6个月近行一次内部清洗,更换润滑油。
4.正常使用的减速器应定期保养。使用单位应根据减速器工作环境和具体情况,6-12个月近行一次全面保养。保养内容如一:打开窥视孔盖板,检查各齿轮输副的磨损情况,观察分析润滑油,若发现润滑油乳化变质,则应将变质的润滑全部放出后,用轻质油撤底清洗,然后加入新润滑油。如果减速器不马上恢复工作,则抽油机至少具应运转10分钟,确保减速器的齿轮和轴承表面形成保修油膜。
5.当轴承采用脂润滑时,一般夏季用ZL-3,冬季用ZL-2锂基润滑脂,每6个月补充一次。
|